- ホーム
- 新築一戸建てをエリアから探す
- 日立市
- 久慈町
- 日立市久慈町7丁目 建売住宅





◆広々LDKは16.5帖♪
\茨城・千葉エリアを中心に3万軒を超える取扱い物件/
◆スマートプラスでは幅広いエリアで豊富な物件をご紹介可能♪
◆お客様のご希望に沿うお住まいも弊社ならきっと見つかります!
\住宅ローンならお任せください!最適な金融機関をご紹介いたします♪/
◆借入がある・転職したて・過去に金融事故があった・他社様でダメだった・・・
◆スマートプラスにぜひ一度ご相談ください!通過実績多数ございます♪
\お客様のご都合に合わせてご見学可能!送り迎えもご相談ください♪/
◆当日はもちろん、お仕事終わりの夜間やスキマ時間など短時間でもご案内可能♪
◆ご自宅や最寄り駅などへのご送迎もお任せください!
すべての画像
~新規物件が誕生です~ ・皆様お待たせいたしました。日立市久慈町7「丁目に新規物件が誕生いたしました。 ・このエリアでお探しの方は、まずはお気軽にお問い合わせくださいませ。お待ちしております。
~ナチュラルな色彩のLDK~ ・自然な風合いの色味で纏められたLDKは家具のコーディネートもしやすくなっております。 ・どんなインテリアにするか、考えるだけでも楽しくなりますね。
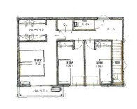
~無駄のない3LDKプランを採用~ ・最も数の多い4LDKでは意外と部屋を持て余してしまう方に人気の3LDKを採用。 ・DINKS世帯の方、お子様が独立されたご夫婦にも人気の間取りです。
~カースペース3台分ご用意~ ・3台分のカースペースがございますので、車通勤の方やご来客の多い方にもお勧めのお住まいです。 ・余裕の敷地で余裕の新生活をお過ごしいただけます。
~穏やかな陽の入るLDK~ ・大きな窓のあるLDKは陽当りも良好で明るい空間となっております。 ・ご家族団らんなど過ごす時間の多いLDKが明るいのは嬉しいポイントですね。
~余裕の空間が広がるLDK~ ・16.5帖あるLDKはご家族団らんのお時間を余裕の広さで演出してくれます。 ・ご内覧の際は家具の配置などもイメージしながらご覧くださいませ。
~人気のカウンターキッチン~ ・キッチンには余計な柱が無いので、リビングが見渡せ開放感のある造りとなっております。 ・蛇口には浄水器が内蔵されるなど機能面でも優れたキッチンです。
~食器洗浄機を標準装備~ ・キッチンにはビルトインタイプの食器洗浄機を標準装備。 ・家事にかける時間を削減でき、「自分時間」を増やすことができる嬉しいアイテムです。
~暖房乾燥機付きの浴室~ ・ヒートショック対策にもなる浴室暖房を標準装備。冬場でも暖かくしてからご入浴が可能です。 ・もちろん乾燥機も付いておりますので、雨の日でも洗濯物を干せますよ。
~人気の三面鏡を採用~ ・洗面台は三面鏡仕様なので鏡の角度を変える事で頭の後ろの方までご確認可能です。 ・鏡の裏が収納になっておりますので、洗面台周りもスッキリと片付きます。
~収納も充実の洗面所~ ・洗面所にはリネンスペースを設ける事でタオルや洗剤などの置場にも困りません。 ・意外とリネンスペースがある物件は少ないので、ぜひ現地でその魅力をご確認ください。
~やはり便利なタンク式トイレ~ ・最近はタンクレストイレもございますが、タンク式の場合は停電時もお水を流すことが可能。 ・故障時なども比較的費用が安くなるなど、メリットが多くなります。
~自然な風合いの洋室~ ・ナチュラルな色彩で纏められた洋室は家具のコーディネートもしやすくなっております。 ・どんな家具にするか考えるだけでも楽しくなってきますね。
~収納豊富な洋室~ ・各居室に備え付けの収納をご用意。タンスなどを置く場合と比べ出っ張らないので部屋の中を有効のご活用いただけます。 ・収納の広さなどぜひ現地でご確認くださいませ。
~ウォークインクローゼットのあるお部屋~ ・人気のウォークインクローゼットをご用意。季節物や趣味の道具などもスッキリと収納が可能です。 ・最近流行りの収納術などもぜひご活用くださいませ。
~オプション施行もお任せください~ ・フローリングの変色など劣化を軽減し、水をこぼした場合などにも防いでくれるフロアコーテイングが人気となっております。 ・オプション施行もお任せください。
~余裕の広さの玄関~ ・玄関スペースを大きく取る事でご帰宅された際の開放感が違います。 ・お客様を出迎える顔にもなる玄関、この広さは魅力的ですね。ぜひ現地でご体感くださいませ。
~十分な容量のシューズボックス~ ・備え付けのシューズボックスは充分な容量を確保。 ・より大型のものへのご変更などご希望の方もお気軽にご相談くださいませ。
~お住まいの顔「玄関」~ ・玄関ドアの上にはもちろん軒がございますので、雨の日でも濡れずに鍵の開閉が可能です。 ・鍵は防犯性に優れたディンプルキーを採用。
~十分な広さのある前面道路~ ・前面道路は約6mございますので、お車でのすれ違いも可能で余計なストレスがかかりません。 ・日々お車での移動が多い方には大切なポイントですね。
~モダンな印象を与える外観~ ・シックな色彩の2トーンカラーを採用する事でモダンでお洒落な印象の外観となっております。 ・毎日家に帰ってくることが誇らしくなる高級感のある仕様。
~地盤調査も実施済み~ ・建物建築前に地盤調査もしておりますので、安心して永くお住まいいただける住宅です。 ・アフターサービスも充実しておりますので、詳細はぜひお問合せくださいませ。
日立市立坂本東小学校 913m
日立市立久慈中学校 698m
担当スタッフより

- 松本 亜希奈
- 日立市のお住まいなら「スマートプラス」へ♪他社様でローンがダメだった・転職したて・頭金なし・借入がある・・・などでもローン通過実績あり!資金面のご相談だけでもお気軽にどうぞ♪
物件詳細情報
物件No.20000402513
| 所在地 | 茨城県日立市久慈町7丁目 | ||
|---|---|---|---|
| 交通 | 常磐線「大甕」駅徒歩22分 常磐線「常陸多賀」駅徒歩80分 常磐線「東海」駅徒歩95分 |
||
| 間取 | 3LDK (LDK16.5帖、洋室7帖、洋室4.5帖、洋室4.5帖) | ||
| 土地面積 | 142.07m² 公簿 | ||
| 建物面積 | 96.05m² | ||
| 販売戸数 | 1戸 | 総戸数 | 全1戸 |
| 構造・規模 | 木造 2階建て | 築年・入居 | 2024年12月 |
| バルコニー | 南向き | 建物現況 | 完成済 |
| 建築確認番号 | 第2024確認建築日立健指0015号 | 駐車スペース | 3台(カースペース:並列) |
| 引渡時期 | 即引渡可 | 地目 | 宅地 |
| 用途地域 | 第一種低層住居専用地域 | 建ぺい率 | 50% |
| 容積率 | 100% | 都市計画 | 市街化区域 |
| 権利種類 | 所有権 | 接道 | 北側6M公道に接道 |
| 小学校区 | 日立市立坂本東小学校(913m) | 中学校区 | 日立市立久慈中学校(587m) |
| 取引態様 | 媒介 | ||
| 設備 | 公営水道、本下水、都市ガス | ||
| その他制限事項 | 景観法、高さ最高限度有、日影制限有 | ||
| 備考・制限等 | 建築基準法第22条区域 | ||
こだわり項目
- ※価格は物件の代金総額を表示しており、消費税が課税される場合は税込み価格です。(1,000円未満は切り上げ。)
税率は引き渡し時期により異なりますので、各物件の詳細につきましてはお問い合わせください。 - ※敷地権利が借地権のものは価格に権利金を含みます。
- ※制作中に内容が変更される場合もありますので、あらかじめご了承ください。
- ※購入の前には物件内容や契約条件についてご自身で十分な確認をしていただくようにお願いいたします。
- ※完成予想図はいずれも外構、植栽、外観等実際のものとは多少異なることがあります。
- ※CG合成の画像の場合、実際とは多少異なる場合があります。
周辺地図
周辺施設一覧
- ショッピングセンター
- スーパー
- コンビニ
- ドラッグストア
- ホームセンター
- 飲食店
- その他店舗
- 商店街
- 大学
- 専門学校
- 高校・高専
- 中学校
- 小学校
- 保育園
- 幼稚園
- 公民館・児童館
- 病院
- 郵便局
- 役所
- 図書館
- 金融機関
- 警察・消防
- 趣味・娯楽施設
- 公園・運動施設
- 周辺の街並み
- 駅
- その他
お問い合せ先
- 株式会社smartplus 水戸
- お電話でのお問い合わせは
0120-250-488「ホームページを見た」とお問い合わせください - 茨城県水戸市元吉田町849-1 第2川上ビル1-a
- 営業時間:9:00~18:00
- 免許番号:茨城県知事(1)第7686号
- ホーム
- 新築一戸建てをエリアから探す
- 日立市
- 久慈町
- 日立市久慈町7丁目 建売住宅















