- ホーム
- 中古住宅をエリアから探す
- 水戸市
- 千波町
- 水戸市千波町 中古戸建て





◆スマートプラスでは幅広いエリアで豊富な物件をご紹介可能♪
◆お客様のご希望に沿うお住まいも弊社ならきっと見つかります!
\住宅ローンならお任せください!最適な金融機関をご紹介いたします♪/
◆借入がある・転職したて・過去に金融事故があった・他社様でダメだった・・・
◆スマートプラスにぜひ一度ご相談ください!通過実績多数ございます♪
\お客様のご都合に合わせてご見学可能!送り迎えもご相談ください♪/
◆当日はもちろん、お仕事終わりの夜間やスキマ時間など短時間でもご案内可能♪
◆ご自宅や最寄り駅などへのご送迎もお任せください!
すべての画像
~資金計画もお任せください~ ・ご見学はもちろん、住宅ローンなど資金面のご相談だけでもお気軽にどうぞ。 ・プロのアドバイザーがお客様にとって最適なプランをご提案させていただきます。
~全居室南向きの間取り~ ・各居室が南向きなので穏やかな陽の入る陽当り良好な仕様。 ・明るい空間でくつろぎのお時間をお過ごしいただけます。
~「和みの部屋」和室をご用意~ ・ゴロンと寝転がったり、お子様のいるご家庭ではお子様を寝かしつけたり、などご活用いただける和室をご用意。 ・やはり畳の香りは心が落ち着きますね。
~広々キッチンスペース~ ・キッチンスペースは余裕のある広さとなっており、キッチン内のでのすれ違いも楽々。 ・お料理や洗い物がしやすい設計となっております。
~水周りのリフォームもお任せください~ ・キッチンリフォームの場合、キッチン全体の交換はもちろん、水栓やコンロ、換気扇のみの変更なども人気がございます。 ・リフォームもぜひご相談ください。
~余裕のある広さの洗面スペース~ ・洗面スペースを大きめに取る事でリネン置場などにも困らず、洗濯なども楽々行っていただけます。 ・洗面が広い物件は意外と少ないので、ぜひご覧くださいませ。
~家族で使いやすいゆとりの脱衣スペース~ ・広さに余裕があり、入浴前後もストレスなく使える設計です。 ・中古でも気になる脱衣スペースはしっかり整備。安心して新生活を始められます。
~1日の疲れを癒す浴室~ ・ユニットバスの交換もお気軽にご相談くださいませ。 ・丸ごとでなくてもシャワーヘッドのみの交換などもお勧めしております。
~やはり便利なタンク式トイレ~ ・最近はタンクレストイレもございますが、タンク式の場合は停電時もお水を流すことが可能。 ・故障時なども比較的費用が安くなるなど、メリットが多くなります。
~2面採光の明るいお部屋~ ・洋室は2面採光とする事で穏やかな陽の入る明るい空間となっております。 ・くつろぎのプライベート時間を明るい空間で穏やかにお過ごしいただけます。
~「和みの部屋」和室をご用意~ ・ゴロンと寝転がったり、お子様のいるご家庭ではお子様を寝かしつけたり、などご活用いただける和室をご用意。 ・やはり畳の香りは心が落ち着きますね。
~オプション施行もお任せください~ ・フローリングの変色など劣化を軽減し、水をこぼした場合などにも防いでくれるフロアコーテイングが人気となっております。 ・オプション施行もお任せください。
~和室でくつろぐ、落ち着きのある暮らし~ ・畳の香りに癒される和室付き。客間やくつろぎスペースとしても活用でき、ゆとりある住空間を実現できます。 ・リビング続きの和室は開放感あり。引き戸を開ければ広々空間、閉めれば個室としても使える便利な一室です。
~日当たり良好!広縁でくつろぐ贅沢空間~ ・明るい広縁は、洗濯物干しやリラックススペースとして活用可能。開放感のある暮らしを実現します。 ・陽だまりを感じられる広縁付き。ゆったりとした時間が流れる、落ち着いた住空間です。
~人気の和室付き!くつろぎ+機能性を両立~ ・洋室にはない魅力が詰まった和室。来客対応や収納スペースとしても活躍する万能な一部屋です。 ・和の落ち着きと心地よさを感じる和室。日々の疲れを癒す、リラックスできる住まいです。
~中古でもここまでキレイ!好印象な玄関~ ・内見時に差がつく玄関の状態。中古物件のイメージを覆す、整った空間です。 ・毎日使う場所だからこそ、きれいさが大切。安心して新生活を始められます。
~お住まいの顔「玄関」~ ・毎日お出かけの際もご帰宅の際も通る玄関。 ・ドアの交換や鍵の交換・追加などもお気軽にご相談くださいませ。
~閑静な住宅街の立地~ ・周辺は閑静な住宅街となっておりますので、静かな暮らしをご実現いただけます。 ・前面道路の交通量も多くないので、小さなお子様がいるご家庭でもご安心ですね。
~十分な広さのある前面道路~ ・前面道路は約4mございますので、お車でのすれ違いも可能で余計なストレスがかかりません。 ・日々お車での移動が多い方には大切なポイントですね。
千波保育園 620m
水戸市立千波小学校 1500m
水戸市立千波中学校 2180m
セブンイレブン水戸千波中央店 550m
ウエルシア水戸御茶園通り店 510m
担当スタッフより

- 柏 一輝
- 水戸市のお住まいなら「スマートプラス」へ♪他社様でローンがダメだった・転職したて・頭金なし・借入がある・・・などでもローン通過実績あり!資金面のご相談だけでもお気軽にどうぞ♪
物件詳細情報
物件No.20000448991
| 所在地 | 茨城県水戸市千波町 | ||
|---|---|---|---|
| 交通 | 常磐線「水戸」駅徒歩25分 | ||
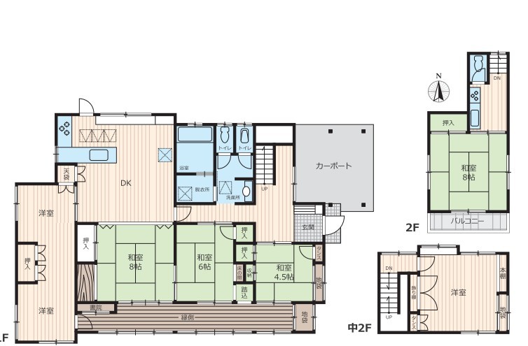
| 間取 | 7DK (DK10帖、洋室8帖、和室8帖、和室8帖、和室6帖、洋室6帖、洋室6帖、和室4.5帖) | ||
| 土地面積 | 330.57m² | ||
| 建物面積 | 167.49m² | ||
| 構造・規模 | 木造 2階建て | 築年月 | 1962年12月築 |
| バルコニー | 南向き | 地目 | 宅地 |
| 用途地域 | 第一種低層住居専用地域 | 建ぺい率 | 40% |
| 容積率 | 80% | 都市計画 | 市街化区域 |
| 駐車スペース | 3台以上(カースペース:縦列) | 現況 | 空家 |
| 引渡時期 | 即引渡可 | 引渡条件 | 現況渡し |
| 権利種類 | 所有権 | 接道 | 東側4M公道に接道 |
| 小学校区 | 水戸市立千波小学校(1500m) | 中学校区 | 水戸市立千波中学校(2180m) |
| 取引態様 | 一般 | ||
| 設備 | 公営水道、本下水、都市ガス | ||
| その他制限事項 | 景観法、高さ最高限度有、日影制限有 | ||
こだわり項目
- ※価格は物件の代金総額を表示しており、消費税が課税される場合は税込み価格です。(1,000円未満は切り上げ。)
税率は引き渡し時期により異なりますので、各物件の詳細につきましてはお問い合わせください。 - ※敷地権利が借地権のものは価格に権利金を含みます。
- ※制作中に内容が変更される場合もありますので、あらかじめご了承ください。
- ※購入の前には物件内容や契約条件についてご自身で十分な確認をしていただくようにお願いいたします。
- ※完成予想図はいずれも外構、植栽、外観等実際のものとは多少異なることがあります。
- ※CG合成の画像の場合、実際とは多少異なる場合があります。
周辺地図
周辺施設一覧
- ショッピングセンター
- スーパー
- コンビニ
- ドラッグストア
- ホームセンター
- 飲食店
- その他店舗
- 商店街
- 大学
- 専門学校
- 高校・高専
- 中学校
- 小学校
- 保育園
- 幼稚園
- 公民館・児童館
- 病院
- 郵便局
- 役所
- 図書館
- 金融機関
- 警察・消防
- 趣味・娯楽施設
- 公園・運動施設
- 周辺の街並み
- 駅
- その他
お問い合せ先
- 株式会社smartplus 水戸
- お電話でのお問い合わせは
0120-250-488「ホームページを見た」とお問い合わせください - 茨城県水戸市元吉田町849-1 第2川上ビル1-a
- 営業時間:9:00~18:00
- 免許番号:茨城県知事(1)第7686号
- ホーム
- 中古住宅をエリアから探す
- 水戸市
- 千波町
- 水戸市千波町 中古戸建て






